





LOT 31 - 3,5 PIECES A VENDRE – AU CŒUR DE PRILLY
Vivez l’élégance et le confort absolu dans ce magnifique appartement de 3,5 pièces, idéalement situé en plein centre de Prilly.
Erigé au 3ème étage d’un immeuble qui sera construit selon les dernières technologies en terme de construction et raffiné dans sa conception, ce bien rare séduit par son espace, sa luminosité et son accessibilité.
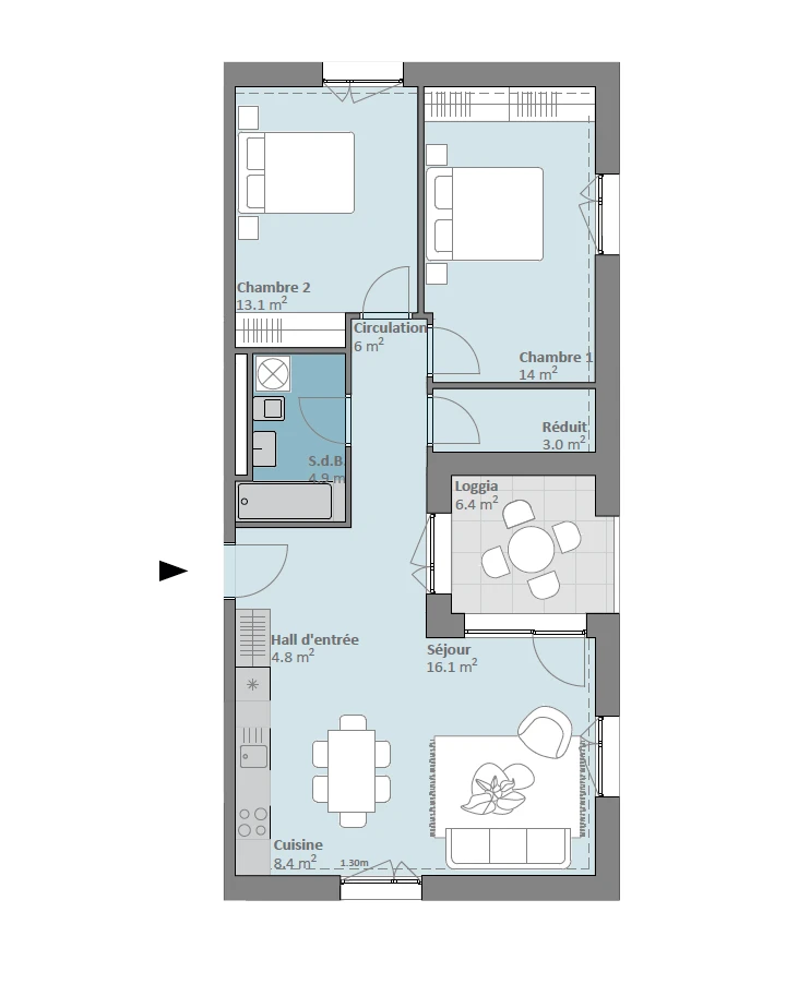
Avec ses 75 m² de surface pondérée parfaitement pensée, cet appartement offre :
Une adresse exceptionnelle
Vivre ici, c’est profiter du meilleur de Prilly à portée de main : Les écoles primaires et secondaires se trouvent à quelques mètres seulement, vos enfants peuvent s’y rendre à pied, en toute sécurité, sans contrainte de trajets.
Les transports publics relient le centre-ville de Lausanne en moins de 10 minutes, tandis que la gare de Prilly-Malley, les centres sportifs, la piscine extérieure et les centres commerciaux sont accessibles en quelques instants.
Confort, modernité et accessibilité
Pensé pour un style de vie moderne, l’appartement est adapté aux familles et accessible aux fauteuils roulants. Chaque détail a été conçu pour offrir un cadre de vie harmonieux, à la fois pratique et prestigieux.
Un cadre de vie rare
Entre urbanité et sérénité, cet attique est l’adresse idéale pour celles et ceux qui recherchent une qualité de vie supérieure, au cœur d’un quartier dynamique et recherché. Un bien qui ne cessera de prendre de la valeur!
Une place de parc dans le garage souterrain d'une valeur de CHF 50'000 se rajoute au prix.
Prix total: CHF 1'050'000
Ne laissez pas passer cette opportunité unique !
Contactez-nous dès aujourd’hui pour découvrir ce bijou immobilier et laissez-vous séduire par l’art de vivre à Prilly.
Site internet de la Promotion : https://prillybuissonniere4.ch
LOTS DE LA PROMOTION: (16 appartements)
Rez-de-jardin
1er étage
2e étage
3e étage
Attique





